新闻动态
积极预防禽流感
绿色环保办公倡议书
近期我公司对施工材料进行突击检查工作
甘肃计划3年完成地震重灾区学校恢复重建
石河子市南山石场镇危桥加固工程正式开工
老07省道十八里桥维修加固工程开工
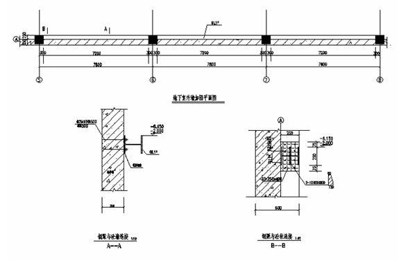
永新公路分局东门大桥加固维修工程开工
碳纤维加固-碳纤维布材料在我国建筑行业中的使用
老房子该如何加强抗震能力
 公司简介

博瑞达通建设有限公司成立于2007年,注册资金6000万,下属分公司:北京分公司、内蒙古自治区分公司、广东分公司、上海分公司是一家施工单位。


今天博瑞达通人奉行“进取 求实 严谨 团结”的方针,公司秉承“诚实守信、质量为先、科技创新”服务宗旨,热忱期待与各界朋友的真诚交流与合作,竭诚为客户提供服务。




 领导关怀

 案例展示
北京化纤厂车间改造加固工程
北京解放军307医院综合楼加固工程
唐山唐银钢铁厂楼层加固工程
河北普阳钢铁厂化工厂改造加固工程
北京独栋别墅加固工程
北京国子监28号院加固工程
乐摩筑建筑加固工程
宏泰小区商住楼加固工程
万兴大酒店综合楼加固工程
四川成飞集团抗震加固工程
北京某农贸市场加固工程
山东枣庄发电厂加固工程
北京某广场地下室(火灾后)改造加固工程
山海关火车站改造加固工程
元大都遗址公园加固改造工程
中华民族园加固改造工程
西安市桥梁检测加固工程
河南省信阳市生产桥检测加固工程
沙河东大桥加固工程
永定河大桥加固工程
1
 最新中标
北京市虎坊路幼儿园及分园加固改造工程中标公示。
 行业新闻
拆除混凝土需要注意什么
北京混凝土切割房屋改造加固
混凝土切割的原理和特点
拆除具体流程解释
墙锯切割对整体结构常识
加固技术引荐
混凝土切割工艺概述
混凝土切割施工工序及工艺流程
混凝土切割之土板裂缝主要防治措施
 学术会议
中国拟投资5亿建全球最大雾霾实验室
建筑结构胶粘剂增长迅速
既有建筑地基基础鉴定和加固措施浅谈
何为混凝土构件增大截面技术,其施工工艺怎样?
混凝土抗冲磨修补技术
一种桥梁检测维修架车的技术
碳纤维加固施工浅析
井巷锚注加固技术应用评价与发展前景
碳纤维复合材料在混凝土结构加固中的技术探讨
北京金博建筑加固公司 北京绳锯切割桥梁切割 北京博瑞达通工程加固 北京博瑞达通桥梁切割 北京辰龙桥梁切割建筑 北京拆除公司专业混凝 北京混凝土切割地面切 北京博瑞达通建筑加固 友情链接 友情链接 友情链接 友情链接 友情链接 友情链接 友情链接 友情链接 友情链接 友情链接 友情链接 友情链接 友情链接 友情链接 友情链接 友情链接

                   北京博瑞达通建设有限公司

公司简介 | 联系我们 | 人才招聘 | 广告说明
北京总公司: TEL: 13520881800  李经理   地址:北京市大兴区北臧村镇福兴路中路临72-2号

呼和浩特分公司:TEL:13520881800 李经理  地址:内蒙古呼和浩特市玉泉区昭君路88号居然之家1-702室

版权所有:博瑞达通 Copyright © 2008-2024 All Rights Reserved 禁止拷贝 翻版必究

     北京博瑞达通建设有限公司-建筑加固深基坑锚杆支护、地热孔、降水井、微型钢管桩、微型灌注桩、高压旋喷桩、基础喷锚支护 、长螺旋桩、旋挖桩、人工桩楼板及各种打桩工程, 楼房锚喷加固、粘钢加固、碳纤维加固、裂缝修复、山体地质灾害防护工程、小型基坑支护工程的设计与施工, 混凝土切割拆除破碎、墙体及楼板各种开洞工程、钢结构制作与安装工程。



北京网站制作公司 技术支持